OPIS SZCZEGÓŁOWY OFERTY NR 74562

    Kanalizacja
    Prąd
    Siła
    Telefon
    Wodociąg

    Kuchnie: 1
    Łazienki: 1
    Piętro: 3
    Pokoje: 4

    Poziomy: Dwupoziomowy
    W budynku: Blok
    Własność: Własność
    Wolne od: od zaraz

    Balkon: balkon i taras
    Kuchnia: Aneks kuchenny
    Ogrzewanie: C.O. miejskie
    Okna: PCV
    Stan instalacji: Nowa
    Stan kuchni: Do własnej aranżacji
    Stan łazienki: Do własnej aranżacji
    Stan techniczny: Deweloperski
    Układ pokoi: Rozkładowy
    WC osobno

    Budynek: Blok
    Do centrum: 1 km
    Garaż
    Głośność: Cicho
    Liczba pięter: 3
    Materiał bud.: Cegła
    Rok budowy: 2025

    Alarm
    Domofon
    Drzwi antywł.
    Internet
    Kamery
    Kraty w oknach
    Osiedle strzeż.
    Rolety okienne
    Telefon
    TV Kablowa
    Winda
OPIS
NOWA INWESTYCJA | KAMERALNA ZABUDOWA | GÓRZYSKOWO
Na sprzedaż mieszkania w kameralnej inwestycji zlokalizowanej na Górzyskowie – jednej z najbardziej wygodnych i dobrze skomunikowanych części miasta.
Budynek o niskiej, 3-piętrowej zabudowie obejmuje zaledwie 37 mieszkań, co zapewnia prywatność i komfort codziennego życia. Całość uzupełniają estetyczne części wspólne oraz elegancko wykończone klatki schodowe.

DOSTĘPNE MIESZKANIA:
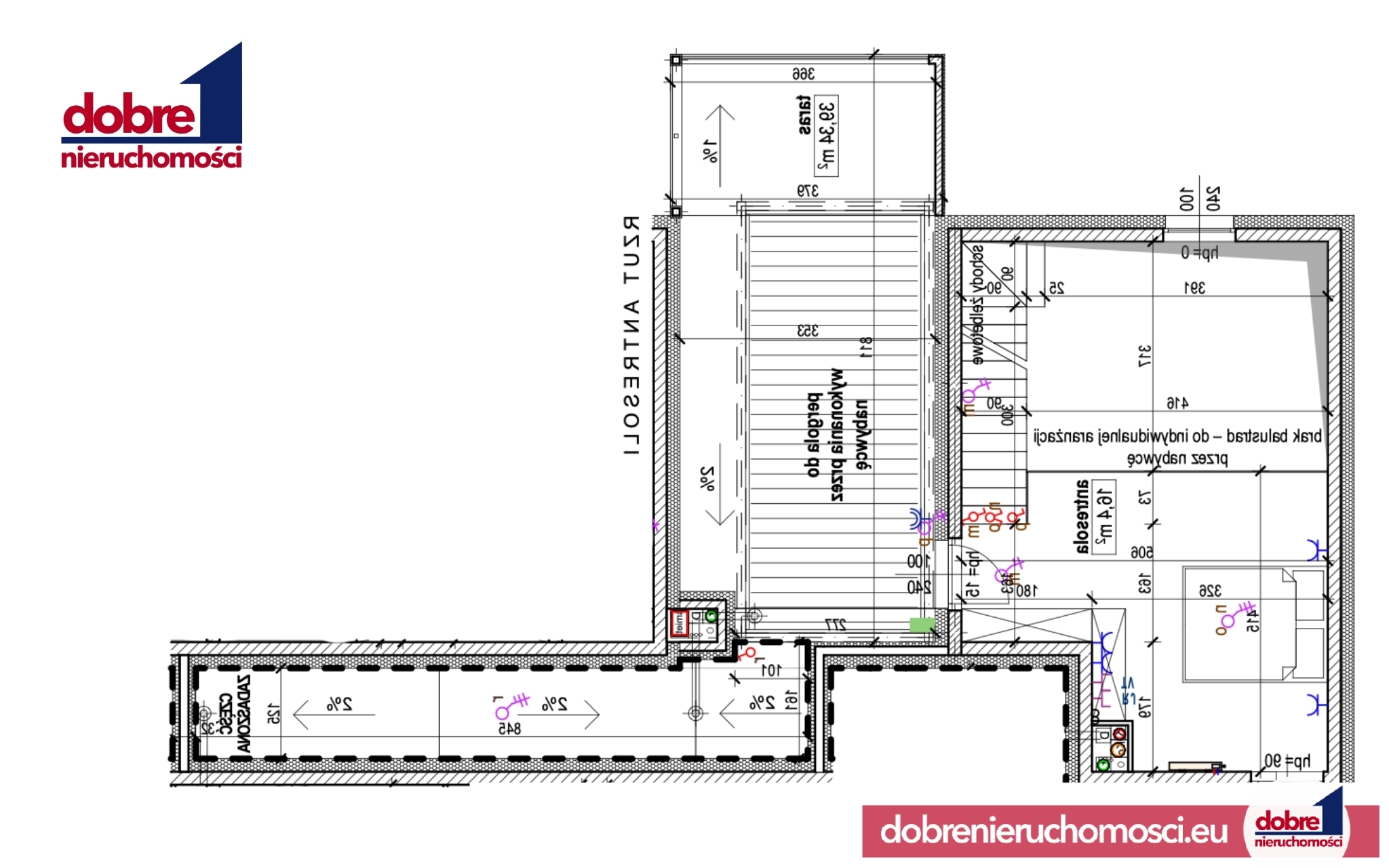
funkcjonalne układy mieszkań
lokale z antresolami (pełna wysokość – brak skosów)
przestronne balkony i tarasy - w pełni wykończone

STANDARD WYKOŃCZENIA:
ogrzewanie miejskie KPEC
instalacja pod płytę indukcyjną
ogrzewanie podłogowe w łazience (tzw. wsteczne)
wyprowadzenie pod TV w sypialni
wykończone balkony i tarasy

BUDYNEK I OSIEDLE:
budynek z windą
hala garażowa
cena miejsca: 43 050 zł
możliwość zakupu nawet 2 miejsc do jednego mieszkania
osiedle zamknięte i monitorowane
plac zabaw dla dzieci

LOKALIZACJA:
Inwestycja położona w spokojnej, a jednocześnie bardzo dobrze skomunikowanej części Górzyskowa.
W bezpośrednim otoczeniu znajdują się:
sklepy i punkty usługowe
szkoły i przedszkola
tereny spacerowe i rekreacyjne
Szybki dostęp do głównych ulic zapewnia wygodne połączenie zarówno z centrum miasta, jak i pozostałymi dzielnicami.

Zapraszam do kontaktu w celu umówienia prezentacji.
Jagoda Górniak
Licencjonowany pośrednik w obrocie nieruchomościami nr 29525
Dobre Nieruchomości
tel. 726 235 136

Nota prawna
Opis oferty zawarty na stronie internetowej sporządzany jest na podstawie oględzin nieruchomości oraz informacji uzyskanych od właściciela, może podlegać aktualizacji i nie stanowi oferty określonej w art. 66 i następnych K.C.

Uwagi dodatkowe
Kontaktując się z agentem odpowiedzialnym za ofertę, koniecznie zapytaj jakie są warunki współpracy z naszym biurem oraz co w związku ze współpracą zapewniamy. Dbając o bezpieczeństwo klientów sprzedających, a często także na ich wyraźne życzenie, nie podajemy adresów nieruchomości bez podpisania uprzednio umowy o pośrednictwo w kupnie lub najmie.
Prowizja jest uzgadniania indywidualnie, na spotkaniu i zależy od zakresu wykonywanych obowiązków na rzecz klienta zamawiającego.

KONTAKT

Wyrażam zgodę na przetwarzanie przez pośrednika moich danych osobowych zgodnie z ustawą z dn. 29.08.1997 (Dz. U. Nr 133, poz. 883).*